Shabu Shabu
Shabu Shabu
Client
Shabu Shabu
Year
2025
Scope
Brand Design Interior Architecture
Location
Hanoi
Industry
F&B
Client
Shabu Shabu
Year
2025
Scope
Brand Design Interior Architecture
Location
Hanoi
Industry
F&B
Client
Shabu Shabu
Year
2025
Scope
Brand Design Interior Architecture
Location
Hanoi
Industry
F&B

Shabu Shabu
Shabu Shabu is a Japanese hotpot concept in Hanoi, aspiring to become Vietnam’s most iconic shabu destination. The concept introduces a new hotpot experience through a focus on authenticity and craft, a distinctive dining journey, and thoughtful top-tier hospitality.
The Lab designed the branding and spatial experience to express care, craftsmanship, and a contemporary interpretation of Japanese dining. Steam rising from the hot pot becomes the core design language, translated into various forms and materials that appear throughout the space.
Gradually spaced wooden slats, transitional surface treatments, translucent materials, and soft lighting create a sense of gentle movement, echoing how steam slowly disperses and enhances the dining atmosphere.
The spatial design also draws from Japanese architectural elements such as shoji doors and circular windows. These references are refined and reinterpreted in a lighter and contemporary way, resulting in a space that feels both new and rooted in tradition.
Shabu Shabu
Shabu Shabu is a Japanese hotpot concept in Hanoi, aspiring to become Vietnam’s most iconic shabu destination. The concept introduces a new hotpot experience through a focus on authenticity and craft, a distinctive dining journey, and thoughtful top-tier hospitality.
The Lab designed the branding and spatial experience to express care, craftsmanship, and a contemporary interpretation of Japanese dining. Steam rising from the hot pot becomes the core design language, translated into various forms and materials that appear throughout the space.
Gradually spaced wooden slats, transitional surface treatments, translucent materials, and soft lighting create a sense of gentle movement, echoing how steam slowly disperses and enhances the dining atmosphere.
The spatial design also draws from Japanese architectural elements such as shoji doors and circular windows. These references are refined and reinterpreted in a lighter and contemporary way, resulting in a space that feels both new and rooted in tradition.
Shabu Shabu
Shabu Shabu is a Japanese hotpot concept in Hanoi, aspiring to become Vietnam’s most iconic shabu destination. The concept introduces a new hotpot experience through a focus on authenticity and craft, a distinctive dining journey, and thoughtful top-tier hospitality.
The Lab designed the branding and spatial experience to express care, craftsmanship, and a contemporary interpretation of Japanese dining. Steam rising from the hot pot becomes the core design language, translated into various forms and materials that appear throughout the space.
Gradually spaced wooden slats, transitional surface treatments, translucent materials, and soft lighting create a sense of gentle movement, echoing how steam slowly disperses and enhances the dining atmosphere.
The spatial design also draws from Japanese architectural elements such as shoji doors and circular windows. These references are refined and reinterpreted in a lighter and contemporary way, resulting in a space that feels both new and rooted in tradition.











Pivot window recesses allows for indirect light to highlight a flexible system of mirrors or print materials.
Pivot window recesses allows for indirect light to highlight a flexible system of mirrors or print materials.
Pivot window recesses allows for indirect light to highlight a flexible system of mirrors or print materials.

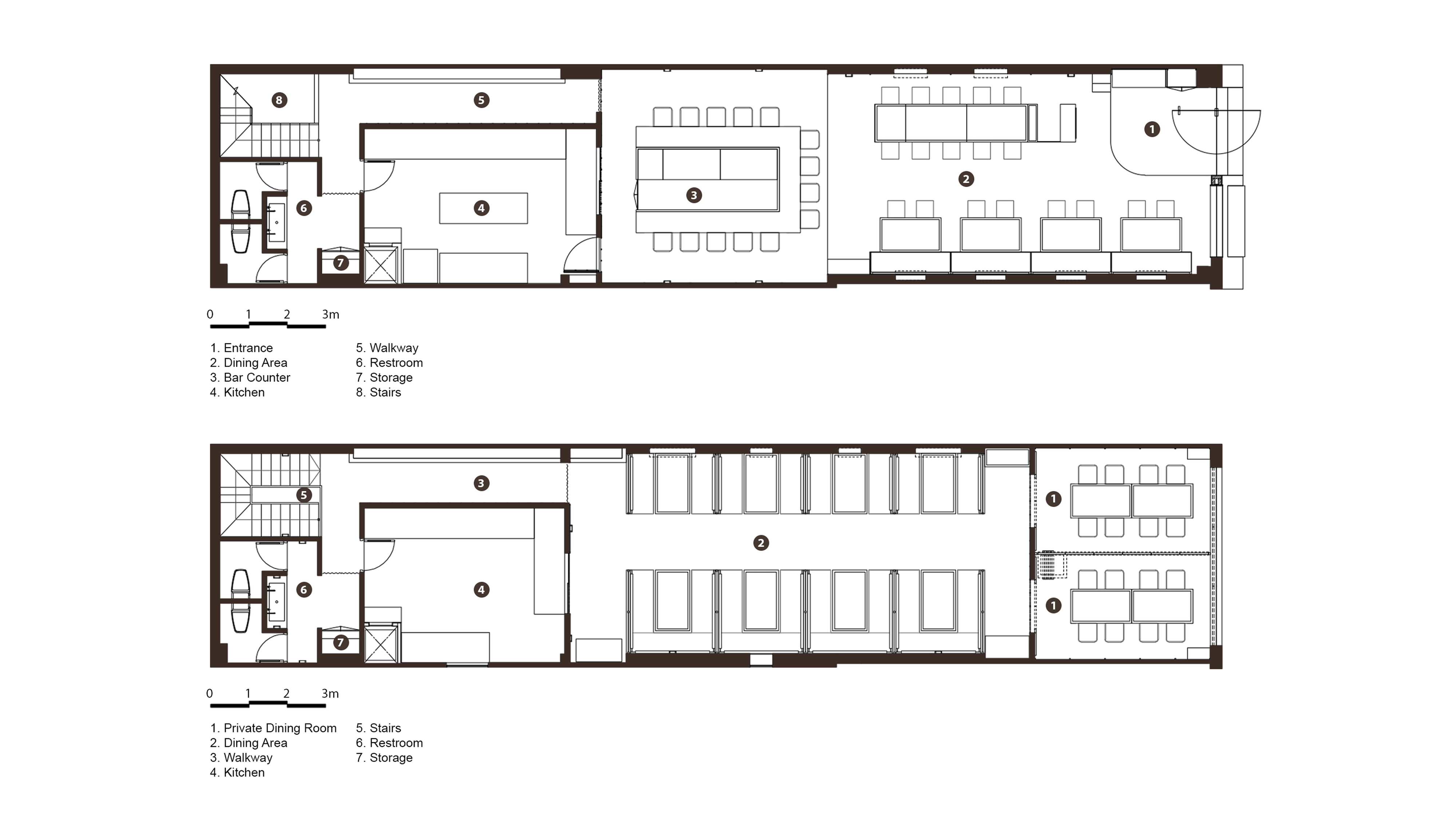
Beyond dining, Shabu Shabu is conceived as a place for connection. Seating is thoughtfully arranged to encourage interaction. Alongside tables for small groups, the restaurant offers communal tables, bar seating for solo diners, flexible arrangements for larger groups, and private rooms, creating a diverse and socially engaging environment.
Beyond dining, Shabu Shabu is conceived as a place for connection. Seating is thoughtfully arranged to encourage interaction. Alongside tables for small groups, the restaurant offers communal tables, bar seating for solo diners, flexible arrangements for larger groups, and private rooms, creating a diverse and socially engaging environment.
Beyond dining, Shabu Shabu is conceived as a place for connection. Seating is thoughtfully arranged to encourage interaction. Alongside tables for small groups, the restaurant offers communal tables, bar seating for solo diners, flexible arrangements for larger groups, and private rooms, creating a diverse and socially engaging environment.



Fiberglass panels are introduced as a contemporary alternative to rice paper in traditional Japanese shoji doors. Laminated onto acrylic and used for wall cladding and partitions, they become a distinctive feature of the space.
Fiberglass panels are introduced as a contemporary alternative to rice paper in traditional Japanese shoji doors. Laminated onto acrylic and used for wall cladding and partitions, they become a distinctive feature of the space.
Fiberglass panels are introduced as a contemporary alternative to rice paper in traditional Japanese shoji doors. Laminated onto acrylic and used for wall cladding and partitions, they become a distinctive feature of the space.









TEAM
Interior Architecture: Nam Hoai, Gia Tu
Draftsman: Nam Hoai, Thuy Linh
Spatial Support: Hung Le
Brand Design: Xuan Phan, Thinh Tran, Rosie Mai, Phuc Hy
Strategic Partnership: Anh Nguyen
Contractor: ABC Architecture & Built
Photographer: Wuyhoang Studio
See More




